تماس : 09126001891 , 52248902-041
ایمیل : info@PlanNegar.com
به کانال تلگرام ما بپیوندید
در اینستاگرام ما را دنبال کنید
خانه
پلان مسکونی
مساحت کمتر از ۱۰۰ متر مربع
مساحت بین ۱۰۰ تا ۲۰۰ متر مربع
مساحت بین ۲۰۰ تا ۳۰۰ متر مربع
مساحت بین ۳۰۰ تا ۴۰۰ متر مربع
مساحت بیشتر از ۴۰۰ متر مربع
پلان ویلایی
مساحت کمتر از ۱۰۰ متر مربع
مساحت بین ۱۰۰ تا ۲۰۰ متر مربع
مساحت بین ۲۰۰ تا ۳۰۰ متر مربع
مساحت بین ۳۰۰ تا ۴۰۰ متر مربع
مساحت بیشتر از ۴۰۰ متر مربع
سفارش طراحی پلان
آپلود پلان
مرکز دانلود
فیلم های آموزشی
مقالات تحلیلی
کتاب الکترونیکی
جزوات دانشگاهی
بانک اتوکد
نرم افزارهای مهندسی
دکوراسیون ساختمان
ورود کاربران
تماس با ما
درباره ما
اهداف سایت
قوانین و مقررات
ثبت شکایات
تماس با ما
جدیدترین پلان های مسکونی
جدیدترین پلان های ویلایی
پرفروش ترین پلان ها
پربازدیدترین پلان ها
پلان های رایگان
جزئیات پلان
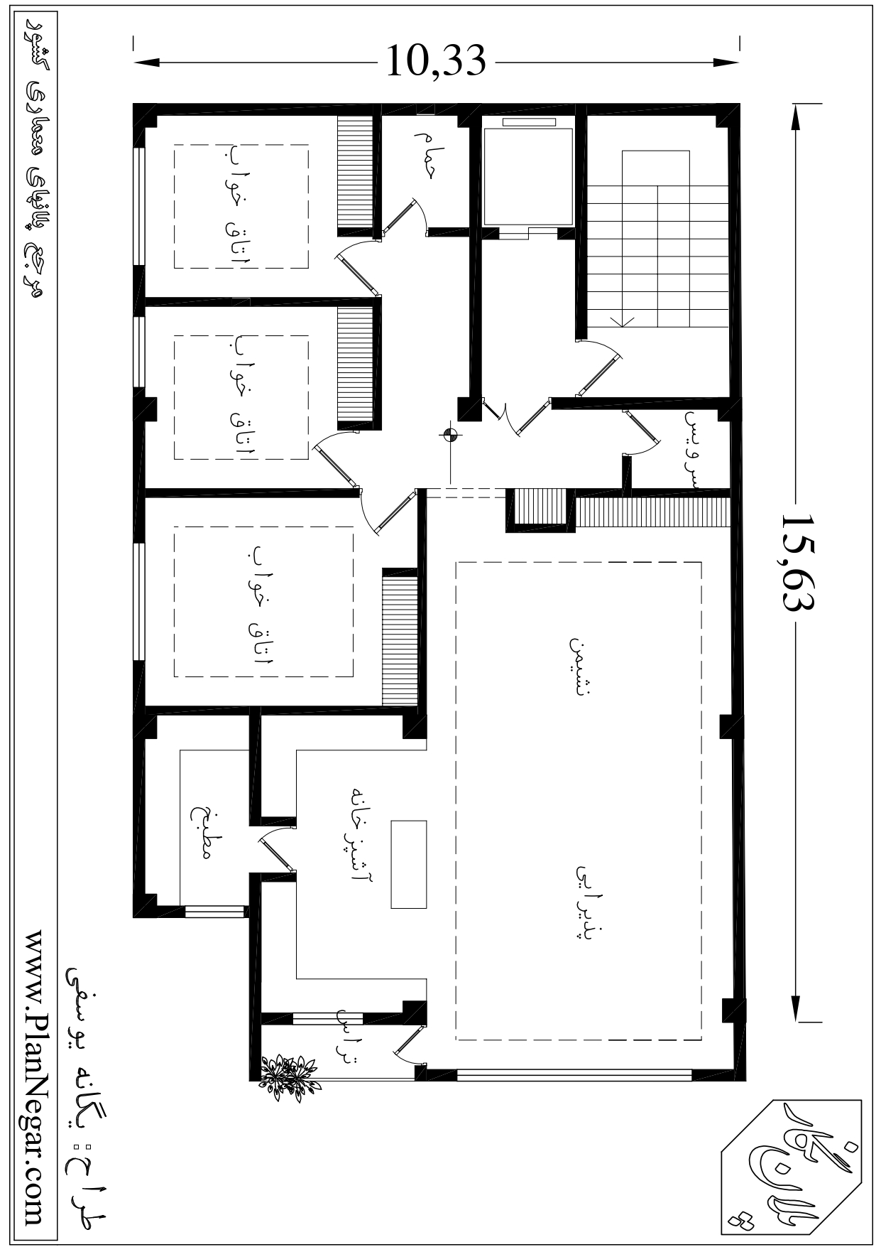
پلان مسکونی 16*10
مشخصات پلان
کد پلان:
1154
نوع کاربری:
مسکونی
تعداد واحد:
5
تعداد طبقات:
6
تعداد خواب:
3
تعداد حمام:
1
موقعیت زمین:
جنوبی-شرقی
مساحت:
160
متر مربع
طول:
15.63
متر
عرض:
10.33
متر
توضیحات پلان
نقشه معماری بفرمت اتوکد شامل موارد ذیل می باشد: 1. سایت پلان 2. پلان مبلمان طبقه همکف 3. پلان مبلمان طبقه اول 4. پلان مبلمان طبقات 5.دتایل های اجرایی
مشخصات خرید
تعداد نمایش:
153
تعداد دانلود تیپ طبقات:
27
تعداد خرید نقشه کامل:
0
طراح پلان:
یگانه یوسفی
پلان تیپ طبقات (PDF):
رایگان
نقشه کامل معماری (CAD):
600000 تومان
نظرات کاربران
نام:
*
ایمیل:
*
ایمیل نادرست
متن پیام:
*