تماس : 09126001891 , 52248902-041
ایمیل : info@PlanNegar.com
به کانال تلگرام ما بپیوندید
در اینستاگرام ما را دنبال کنید
خانه
پلان مسکونی
مساحت کمتر از ۱۰۰ متر مربع
مساحت بین ۱۰۰ تا ۲۰۰ متر مربع
مساحت بین ۲۰۰ تا ۳۰۰ متر مربع
مساحت بین ۳۰۰ تا ۴۰۰ متر مربع
مساحت بیشتر از ۴۰۰ متر مربع
پلان ویلایی
مساحت کمتر از ۱۰۰ متر مربع
مساحت بین ۱۰۰ تا ۲۰۰ متر مربع
مساحت بین ۲۰۰ تا ۳۰۰ متر مربع
مساحت بین ۳۰۰ تا ۴۰۰ متر مربع
مساحت بیشتر از ۴۰۰ متر مربع
سفارش طراحی پلان
آپلود پلان
مرکز دانلود
فیلم های آموزشی
مقالات تحلیلی
کتاب الکترونیکی
جزوات دانشگاهی
بانک اتوکد
نرم افزارهای مهندسی
دکوراسیون ساختمان
ورود کاربران
تماس با ما
درباره ما
اهداف سایت
قوانین و مقررات
ثبت شکایات
تماس با ما
جدیدترین پلان های مسکونی
جدیدترین پلان های ویلایی
پرفروش ترین پلان ها
پربازدیدترین پلان ها
پلان های رایگان
جزئیات پلان
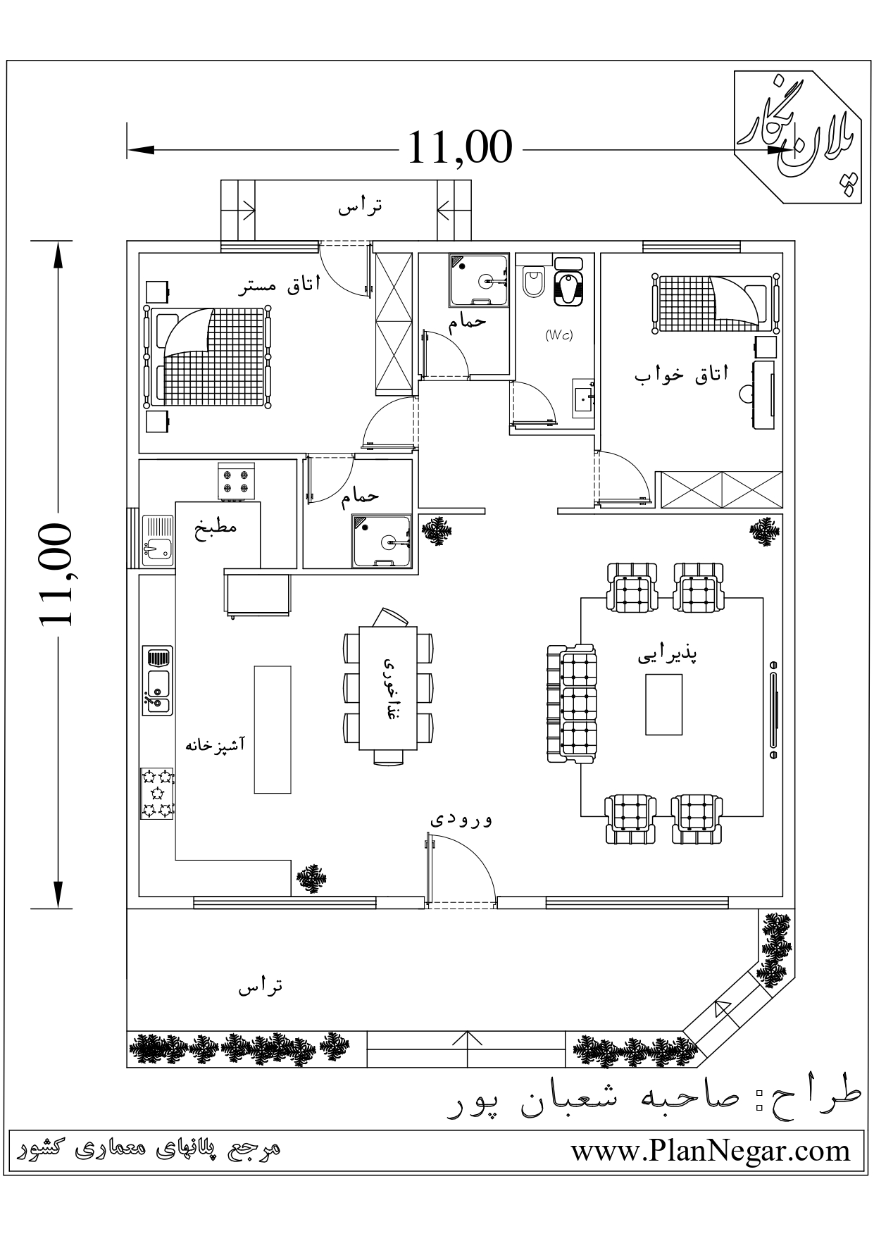
پلان ویلایی 11*11
مشخصات پلان
کد پلان:
1153
نوع کاربری:
ویلایی
تعداد واحد:
1
تعداد طبقات:
1
تعداد خواب:
2
تعداد حمام:
2
موقعیت زمین:
شمالی-جنوبی-غربی
مساحت:
121
متر مربع
طول:
11
متر
عرض:
11
متر
توضیحات پلان
نقشه معماری بفرمت اتوکد شامل موارد ذیل می باشد: 1. پلان اندازه گذاری طبقه همکف 2. پلان مبلمان طبقه همکف 3. پلان ستون گذاری 4.دتایل های اجرایی
مشخصات خرید
تعداد نمایش:
439
تعداد دانلود تیپ طبقات:
98
تعداد خرید نقشه کامل:
0
طراح پلان:
صاحبه شعبان پور
پلان تیپ طبقات (PDF):
رایگان
نقشه کامل معماری (CAD):
650000 تومان
نظرات کاربران
نام:
*
ایمیل:
*
ایمیل نادرست
متن پیام:
*